En cours
Bohan – maison de village polyvalente
Le projet consiste en la création d’une maison de village polyvalente et l’aménagement de ses
abords sur le site de la salle de la Mairie à Bohan.
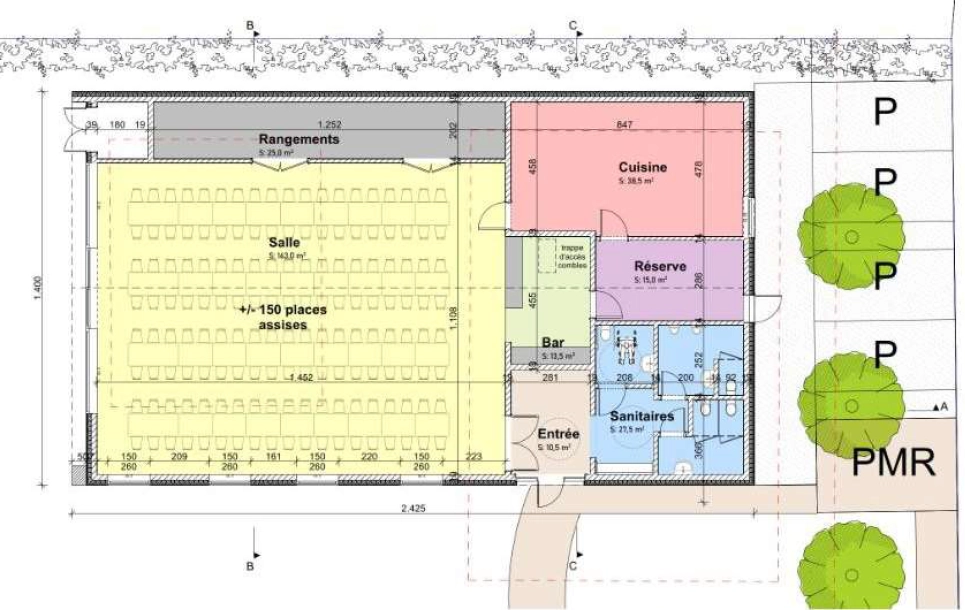
Les travaux de réhabilitation étant jugés trop importants, il a été décidé de démolir cette infrastructure afin de reconstruire sur la même parcelle un bâtiment à un niveau répondant aux normes actuelles en termes de performance énergétique notamment. La maison de village comprend une salle pouvant accueillir 150 personnes assises, ainsi qu’une cuisine professionnelle, un bar, une réserve, des espaces de rangement et des sanitaires. Le local technique se trouve dans les combles.
À l’avant du bâtiment, se trouveront également une place de parking PMR, quelques places de stationnement, un espace de livraison et l’accès à la maison de village.

Envie de découvrir d’autres projets et mesurer l’étendue des champs d’action du développement rural ? Rendez-vous sur…
